image

Architecture, Ingénierie & Construction

A propos

Notre mission

Notre mission

Le département AEC représente le Design Engineering Center (DEC) de CIMES, regroupant toutes les compétences liées au dimensionnement de structure et à l’activité de maitrise d’œuvre.

Nous mettons l’utilisation de logiciels de simulation numérique de pointe au service de la conception de bâtiments techniques.

image

Enjeux & Innovations

Enjeux & Innovations

Dans le contexte actuel de renforcement des contraintes énergétiques et environnementales, plus que jamais l’art et la technique doivent cohabiter pour aboutir à des conceptions innovantes.

Depuis 1986, nous capitalisons plus de 35 ans de collaboration sur des projets d’architectures, d’études d’infrastructures et de bâtiments techniques.

image

Expertises Techniques

Expertises Techniques

Nous apportons une lecture optimale des solutions constructives auprès de nos partenaires et clients en fédérant chacune des expertises du pôle de compétences.

Pour ce faire, nous disposons des logiciels et moyens hardware (cluster HPC) nécessaires, tels que : Archicad, Civil FEM, Robot, Effel, LS-Dyna et Flacs notamment.

image

Génie civil & Infrastructures

image

Infrastructures Industrielles

Confronté aux enjeux climatiques, nous vérifions pour le compte de nos partenaires, le dimensionnement des infrastructures aux scénarii critiques : tenue aux spectres sismiques, combinaisons ELS et ELU, effondrement, incendie.

Les expertises que nous menons sur les structures métalliques ou béton permettent notamment de tenir compte des armatures, des précontraintes, du phasage de la construction, des conditions environnementales et de l’utilisation de l’ouvrage.

image

Ouvrages d’Art

Sollicité pour des expertises vibratoires d’infrastructures ferroviaires, nous conduisions les études visant à qualifier le comportement des ouvrages d’art au passage de train(s) (rame voyageur ou wagons de fret).

Les calculs menés permettent de définir les dispositifs de filtration et d’amortissement optimum au regard des exigences de fiabilité (reprise des efforts de freinage, …) et de confort acoustique exigés par les règlementations en vigueur, en considérant notamment : l’interaction entre le train et l’infrastructure, les caractéristiques de la voie (ballastée, etc…) et la charpente de l’ouvrage.

image

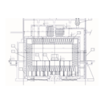
Bâtiments techniques

Nous intervenons sur l’étude des risques AtEx et d’explosion pour le développement des centres techniques : stations, plateformes d’essais, laboratoires et ouvrages spécifiques. Les expertises en calculs de dispersion et d’explosion accompagnent la conception des ouvrages et des moyens de protection associés.

Nous définissons les protocoles de maitrise des risques, les plans de prévention et dimensionnons les moyens de protection (classe de béton, capteurs, events, …).

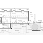
Ingénierie des bancs d’essais

image

Banc d’essais pack batteries

image

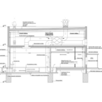
Hall d’essais combustion

image

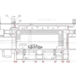
Hall d’essais dynamiques

image

Banc moteur anéchoïque

image

Banc développement dynamique

image

Chambre semi-anéchoïque

image

Technocentre machinisme agricole

image

Piste d’essais acoustique

image

Extension de stockage carburant

image

Banc turbulence

image

Laboratoire d’essais mécaniques

Références

image
image
image
image
image
image
image
image
image
image
image
image
image
image
image
image
image